Rif. 4499_1D - Lurate Caccivio/4 locali

In vendita
4 o più locali
Lurate Caccivio
460.000 €
Planimetrie
Descrizione
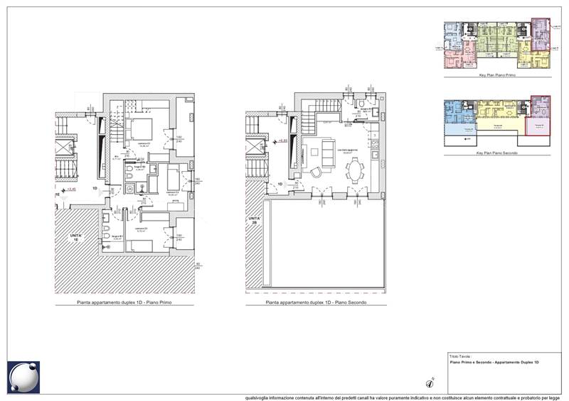
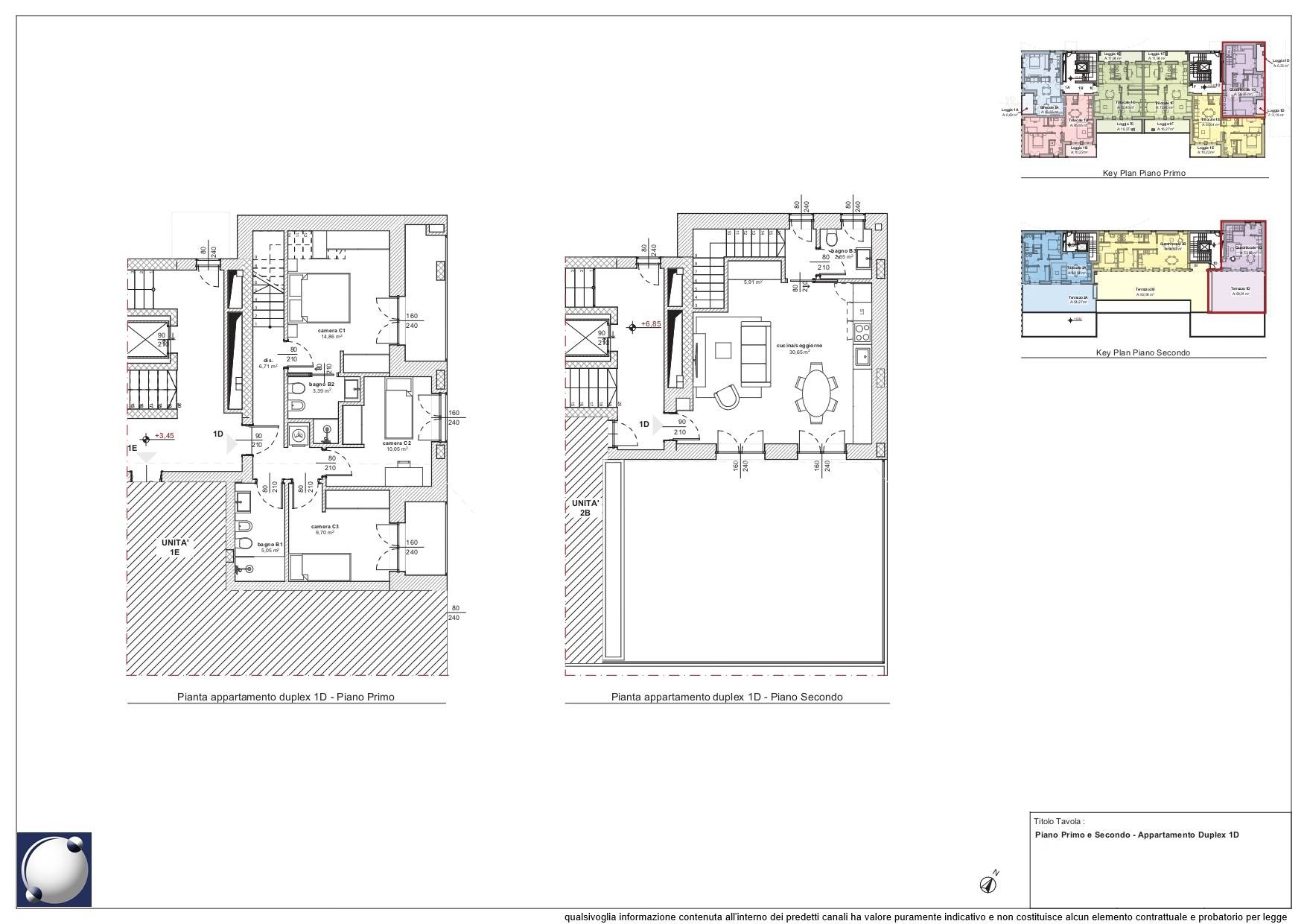
In nuova palazzina in fase di realizzazione posta nelle immediate vicinanze del centro cittadino e comoda con scuole, servizi e trasporti ma al tempo stesso inserito un ambiente tranquillo, proponiamo soluzione abitative di due, tre e quattro locali di varie metrature e accessori con la possibilità di autorimesse singole o doppie e cantine. Il tutto in un contesto dalle linee moderne con un impiantistica di ultima generazione e possibilità di scelte delle finiture da un capitolato di qualità. In questo annuncio ti vogliamo mettere in evidenza un particolare appartamento disposto su due livelli di quattro locali con cucina a vista, tre bagni, due balconi e un terrazzo di 60mq. Chiamateci per maggiori informazioni per questo per le altre soluzioni non ve ne pentirete. (Valore di Progetto in Classe Energetica da A1 a A4)
Caratteristiche principali
Codice:
Rif. 4499_1D
Città:
Lurate Caccivio
Categoria:
4 o più locali
Locali:
4
Camere:
3
Bagni:
3
Mq:
124
Balconi:
2
Mq Balcone:
9
Terrazzi:
1
mq Terrazzo:
60
Piano:
1
Anno:
2025
Classe energetica:
In fase di valutazione
Stato Immobile:
In Costruzione
Grado:
Signorile
Posizione:
Centro
Lati Liberi:
3
Giardino:
No
Arredi:
Non Arredato
Tipo Soggiorno:
Soggiorno
Tipo Cucina:
A Vista
Riscaldamento:
Autonomo
Tipo Riscaldam.:
Pompa di Calore
Tipo Impianto:
Pavimento
Fonte Energetica:
Fotovoltaico
Acqua Calda:
Autonoma a Pannelli
Raffrescamento:
Predisposizione
Infissi:
PVC Doppio Vetro
Serramenti:
Nuovo
Persiana:
Tapparella Metallo
Pavim. Giorno:
Personalizzato
Pavim. Notte:
Personalizzato
Pavim. Cucina:
Personalizzato
Pavim. Bagno:
Personalizzato
Accesso Disabili:
Nessuna Barriera
Accesso interno disabili:
Pieno accesso
VMC:
Si
Accessori
Ascensore
Cancello Elettrico
Doppi Vetri
Impianto Fotovoltaico
Porta Blindata
Mappa
Via Olgiate, 42 - Lurate Caccivio (CO)
Cookie preference